Cầm trên tay bản phối cảnh 3D lung linh, bạn ngập tràn trong sự háo hức về ngôi nhà tương lai. Nhưng khi kiến trúc sư trao cho bạn một tập hồ sơ kỹ thuật dày cộp với những đường nét, con số và ký hiệu phức tạp, sự hào hứng ấy có thể nhanh chóng biến thành cảm giác bối rối, thậm chí là lo lắng. Nhiều gia chủ tại Hải Phòng cũng chia sẻ cảm giác này, họ thường bỏ qua bước quan trọng nhất: đọc và hiểu bản vẽ thiết kế chi tiết. Đây chính là "tấm bản đồ" quan trọng nhất dẫn lối từ ý tưởng đến hiện thực, và việc "mù đường" có thể dẫn đến những sai sót tốn kém, những thay đổi không mong muốn và sự thất vọng khi công trình hoàn thành không như ý.
Với kinh nghiệm hàng chục năm trong ngành, chúng tôi hiểu rằng gia chủ không cần phải trở thành một kiến trúc sư hay kỹ sư xây dựng. Tuy nhiên, việc trang bị những kiến thức nền tảng để đọc hiểu bản vẽ là một kỹ năng cực kỳ quan trọng. Nó không chỉ giúp bạn kiểm soát tiến độ, chất lượng thi công mà còn là công cụ giao tiếp hiệu quả nhất với đơn vị thiết kế và đội thợ. Bài viết này sẽ là một cuốn cẩm nang đơn giản, giúp bạn giải mã những "mật mã" trong bộ hồ sơ thiết kế, tự tin giám sát và đảm bảo ngôi nhà mơ ước của mình được hiện thực hóa một cách hoàn hảo nhất.
Tại sao gia chủ nhất định phải biết đọc bản vẽ thiết kế nội thất?
Nhiều người cho rằng đã thuê đơn vị thiết kế và thi công trọn gói thì chỉ cần xem 3D và chờ ngày nhận nhà. Suy nghĩ này có thể khiến bạn phải trả giá đắt. Việc chủ động tìm hiểu bản vẽ mang lại những lợi ích không thể đong đếm:
- Tránh sai sót và tiết kiệm chi phí: Đây là lợi ích lớn nhất. Khi bạn hiểu bản vẽ, bạn có thể phát hiện ra những điểm bất hợp lý ngay trên giấy tờ. Ví dụ: ổ cắm điện bị đặt sau lưng tủ quần áo, cửa tủ bếp mở ra bị vướng vào tủ lạnh, khoảng cách giữa bàn ăn và tường quá hẹp... Việc sửa chữa những lỗi này trên bản vẽ chỉ tốn vài phút, nhưng nếu để đến lúc thi công mới phát hiện, chi phí đục đẽo, sửa chữa và thời gian chờ đợi sẽ tăng lên gấp nhiều lần.
- Đảm bảo công năng sử dụng tối ưu: Bản vẽ 2D thể hiện chính xác nhất về công năng và luồng di chuyển trong nhà. Bạn có thể hình dung được lối đi có đủ rộng rãi không, vị trí các thiết bị đã thuận tiện cho thói quen sinh hoạt của gia đình hay chưa. Đây là điều mà hình ảnh 3D đôi khi không thể hiện hết được vì nó tập trung nhiều hơn vào thẩm mỹ.
- Là cơ sở pháp lý và nghiệm thu: Bản vẽ kỹ thuật thi công là một phần không thể thiếu của hợp đồng. Mọi hạng mục thi công, từ kích thước, vật liệu đến chủng loại thiết bị, đều phải tuân thủ nghiêm ngặt theo bản vẽ đã được hai bên ký duyệt. Khi nghiệm thu, bạn sẽ dựa vào chính bản vẽ này để đối chiếu, đảm bảo đội thợ làm đúng, làm đủ, không cắt xén vật tư hay thay đổi thiết kế.
- Giao tiếp hiệu quả và thể hiện sự chủ động: Khi bạn có thể trao đổi với kiến trúc sư và đội thi công bằng ngôn ngữ của bản vẽ, họ sẽ hiểu chính xác mong muốn của bạn. Điều này giúp giảm thiểu hiểu lầm và cho thấy bạn là một gia chủ có tìm hiểu, quan tâm đến tổ ấm của mình. Sự tôn trọng và hợp tác giữa các bên cũng từ đó mà tốt hơn.

Giải mã bộ hồ sơ bản vẽ thiết kế nội thất đầy đủ
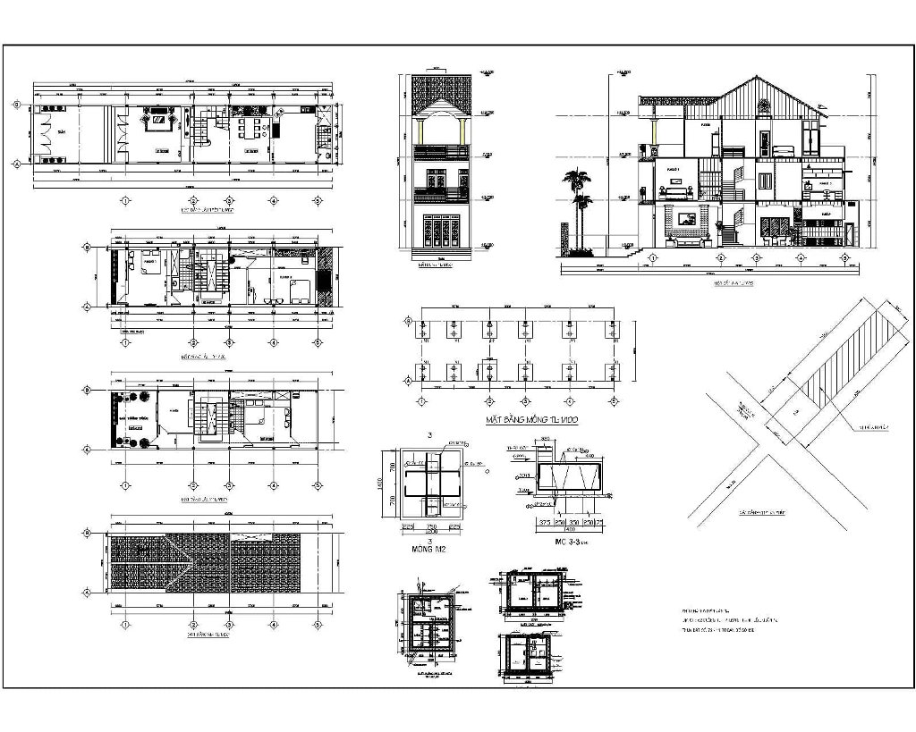
Một bộ hồ sơ thiết kế chuyên nghiệp thường bao gồm nhiều loại bản vẽ khác nhau, mỗi loại có một chức năng riêng. Đừng hoảng sợ khi thấy quá nhiều giấy tờ, hãy cùng nhau tìm hiểu "vai trò" của từng loại một.
1. Bản vẽ mặt bằng bố trí nội thất (2D Layout)
Đây là bản vẽ quan trọng nhất, là xương sống của toàn bộ thiết kế. Hãy tưởng tượng bạn đang đứng trên trần nhà và nhìn thẳng xuống không gian bên dưới, đó chính là bản vẽ mặt bằng. Nó cho bạn cái nhìn tổng quan về cách sắp xếp không gian và đồ đạc.
Khi xem bản vẽ này, bạn cần chú ý:
- Kích thước tổng thể và chi tiết: Kiểm tra kích thước của từng phòng, kích thước các món đồ nội thất (giường, tủ, sofa, bàn ăn...). Hãy lấy thước dây đo thử trong không gian thực tế để hình dung độ lớn của chúng. Một chiếc sofa trông vừa phải trên bản vẽ có thể trở nên quá khổ trong phòng khách của bạn.
- Luồng giao thông: Hãy vạch ra đường đi lại hàng ngày của gia đình bạn trên bản vẽ. Lối đi từ cửa vào phòng khách, từ phòng khách vào bếp, vào phòng ngủ có thông thoáng không? Khoảng cách tối thiểu cho một lối đi chính nên là 90cm - 120cm.
- Không gian thao tác: Đảm bảo có đủ không gian để sử dụng đồ đạc một cách thoải mái. Ví dụ: khoảng trống phía trước tủ quần áo phải đủ rộng để bạn mở hết cánh tủ và đứng lựa đồ (khoảng 80cm-90cm). Ghế ăn phải kéo ra được mà không bị vướng vào tường hay đồ vật khác.
- Hướng mở của cửa: Kiểm tra hướng mở của cửa ra vào và cửa sổ. Cửa mở ra có bị vướng vào đồ đạc nào không? Có chặn mất lối đi không? Đây là một chi tiết nhỏ nhưng ảnh hưởng rất nhiều đến sự tiện dụng hàng ngày.
2. Bản vẽ mặt đứng và mặt cắt
Nếu bản vẽ mặt bằng là nhìn từ trên xuống, thì bản vẽ mặt đứng là nhìn trực diện vào một bức tường hoặc một hệ tủ. Nó thể hiện chiều cao, hình dáng, tỷ lệ của các vật thể theo phương thẳng đứng. Bản vẽ mặt cắt giống như bạn "cắt" một lát qua đồ vật (như hệ tủ bếp, tủ quần áo) để xem cấu tạo bên trong.
Những điểm cần kiểm tra:
- Chiều cao đồ đạc: Chiều cao của bàn bếp, tủ bếp trên, kệ tivi, giá sách đã phù hợp với chiều cao trung bình của các thành viên trong gia đình chưa? Ví dụ, tủ bếp trên quá cao sẽ gây khó khăn khi sử dụng.
- Sự phân chia ô, ngăn: Xem cách chia các đợt tủ, ngăn kéo bên trong tủ quần áo, tủ bếp, tủ giày. Cách phân chia này có phù hợp với nhu cầu lưu trữ của bạn không? Bạn muốn treo nhiều đồ hay gấp nhiều đồ? Bạn có những thiết bị nhà bếp kích thước lớn cần không gian riêng không?
- Chi tiết trang trí: Bản vẽ mặt đứng thể hiện rõ các chi tiết như phào chỉ tường, nẹp trang trí, kiểu dáng cánh tủ (cánh phẳng, pano, soi huỳnh...), vị trí tay nắm. Hãy chắc chắn rằng chúng đúng với phong cách bạn đã chọn.
3. Bản vẽ trần và sàn
Đây là hai bản vẽ thường bị bỏ qua nhưng lại ảnh hưởng rất lớn đến thẩm mỹ tổng thể và hệ thống kỹ thuật của ngôi nhà.
- Bản vẽ trần: Cho biết thiết kế của trần thạch cao (giật cấp hay trần phẳng), vị trí và loại đèn sẽ được lắp đặt (đèn downlight, đèn hắt, đèn chùm, đèn thả...). Hãy đối chiếu bản vẽ này với bản vẽ mặt bằng nội thất. Đèn chùm có nằm đúng giữa bộ bàn ăn không? Đèn rọi tranh có chiếu đúng vào vị trí treo tranh dự kiến không? Vị trí đèn có cung cấp đủ ánh sáng cho các khu vực chức năng không?
- Bản vẽ sàn: Thể hiện cách lát vật liệu sàn. Gạch sẽ được lát theo kiểu nào (lát thẳng, lát xương cá...), khu vực nào dùng sàn gỗ, khu vực nào dùng gạch, điểm chuyển tiếp giữa hai vật liệu được xử lý ra sao. Điều này đặc biệt quan trọng nếu bạn muốn tạo điểm nhấn hoặc phân chia không gian bằng vật liệu sàn.
4. Bản vẽ triển khai chi tiết đồ nội thất (Bản vẽ bổ kỹ thuật)
Đây là những bản vẽ "cận cảnh" nhất, mô tả chi tiết cấu tạo của từng món đồ nội thất đặt đóng riêng như tủ bếp, tủ quần áo, giường, kệ tivi... Nó giống như một bản hướng dẫn lắp ráp chi tiết cho xưởng sản xuất.
Bạn cần xem xét kỹ:
- Vật liệu: Bản vẽ sẽ ghi rõ vật liệu chính (gỗ MDF chống ẩm phủ Melamine, Acrylic, Laminate...), vật liệu phụ (hậu tủ, khung xương...). Hãy chắc chắn rằng vật liệu được ghi đúng với những gì bạn đã thỏa thuận trong hợp đồng.
- Kích thước chi tiết: Độ dày của ván gỗ, chiều sâu của ngăn kéo, chiều cao mỗi đợt kệ... tất cả đều được thể hiện chính xác.
- Phụ kiện và cơ cấu: Ghi chú về loại bản lề (bản lề giảm chấn), ray trượt (ray bi hay ray âm), tay nắm, khóa, pitton... Đây là những yếu tố quyết định độ bền và sự tiện dụng của sản phẩm.
5. Bản vẽ hệ thống điện - nước (MEP)
Bản vẽ này thể hiện sơ đồ đi dây điện, ống nước, điều hòa, internet... Nó cực kỳ quan trọng và cần được xem xét cẩn thận cùng với bản vẽ bố trí nội thất.
Danh sách kiểm tra không thể bỏ qua:
- Vị trí ổ cắm: Có đủ ổ cắm ở những nơi cần thiết không? Vị trí ổ cắm cho tivi, tủ lạnh, máy lọc nước, bàn làm việc, đầu giường... đã hợp lý chưa? Tránh tình trạng sau này phải dùng ổ cắm nối dài chằng chịt, rất mất thẩm mỹ và không an toàn.
- Vị trí công tắc: Công tắc đèn có được đặt ở vị trí thuận tiện, ngay cửa ra vào không? Có công tắc 2 chiều cho hành lang hoặc phòng ngủ lớn không?
- Vị trí chờ: Kiểm tra vị trí chờ cho các thiết bị như điều hòa, bình nóng lạnh, máy giặt, máy rửa bát... Vị trí đầu cấp, thoát nước và nguồn điện phải khớp với vị trí đặt thiết bị.
- Ánh sáng: Vị trí các công tắc đèn đã điều khiển đúng nhóm đèn mà bạn mong muốn chưa?

Bí quyết "vàng" giúp gia chủ đọc bản vẽ hiệu quả
Việc đọc bản vẽ sẽ trở nên dễ dàng hơn rất nhiều nếu bạn áp dụng những mẹo nhỏ sau:
- Đừng ngại hỏi: Không có câu hỏi nào là ngớ ngẩn. Bất cứ ký hiệu, đường nét hay con số nào bạn không hiểu, hãy hỏi lại kiến trúc sư ngay lập tức. Yêu cầu họ giải thích cặn kẽ cho đến khi bạn hoàn toàn thông suốt.
- Đối chiếu giữa các bản vẽ: Hãy đặt các bản vẽ liên quan cạnh nhau để đối chiếu. Ví dụ, đặt bản vẽ mặt bằng nội thất cạnh bản vẽ điện để xem ổ cắm có bị che bởi đồ đạc không. Đặt bản vẽ trần cạnh bản vẽ mặt bằng để xem đèn có chiếu sáng đúng khu vực chức năng không.
- Luôn chú ý đến phần "Ghi chú" và "Chú giải": Đây là phần giải thích các ký hiệu, quy định về vật liệu, màu sắc... được sử dụng trong toàn bộ bản vẽ. Đọc kỹ phần này sẽ giúp bạn hiểu được ngôn ngữ của kiến trúc sư.
- Tưởng tượng trong không gian 3 chiều: Khi xem bản vẽ 2D, hãy cố gắng hình dung nó trong không gian thực. Lấy một chiếc thước dây, đo các khoảng cách được ghi trên bản vẽ ra sàn nhà thực tế của bạn để cảm nhận rõ hơn về không gian.
- Ký duyệt cẩn thận: Chỉ ký tên lên bản vẽ khi bạn đã thực sự hiểu và hoàn toàn đồng ý với tất cả các chi tiết. Chữ ký của bạn là sự xác nhận cuối cùng, là căn cứ để đội thợ triển khai thi công.

Nhận xét
Đăng nhận xét
Cảm ơn bạn đã đóng góp ý kiến cho blog để blog được phát triển hơn nữa, đóng góp những kiến thức hữu ích cho cuộc sống.